Architectural Design VI Gallery
During this semester, students will be asked to integrate several aspects of their architectural education coming from many disciplines. Through the design of a medium scale public building, this studio aims to bring into focus the role of these disciplines and their impact on each other, addressing issues of structure, building envelope, building codes, environmental- mechanical- electrical systems, construction alternatives, life-cycle costs and sustainable strategies. Therefore, the emphasis will be placed in the creativity of the process of integrating all building systems and environmental concerns into the design proposal. In addition, being mindful of the understanding of the impact of buildings into the environment, proposals will need to satisfy NYC Building Code regulations to provide public health and safety, and the rating requirements of ‘Gold’ or ‘Platinum” set by the US Green Building Council.
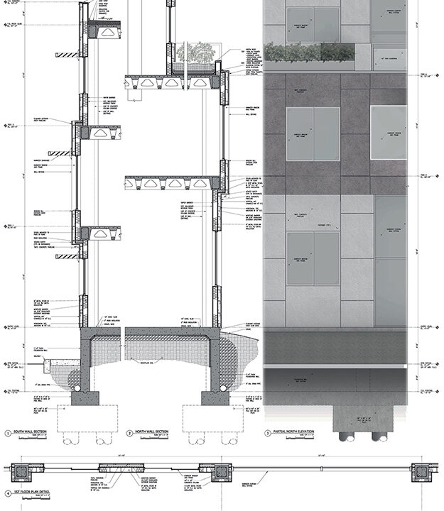
Student(s): Phillip He, Leng Cheng, Jiahan Wang
Faculty: Brad Engelsman
Semester: Spring 2019
Student(s): Phillip He, Leng Cheng, Jiahan Wang
Faculty: Brad Engelsman
Semester: Spring 2019
Student(s): Phillip He, Leng Cheng, Jiahan Wang
Faculty: Brad Engelsman
Semester: Spring 2019
Student(s): Phillip He, Leng Cheng, Jiahan Wang
Faculty: Brad Engelsman
Semester: Spring 2019
Student(s): Phillip He, Leng Cheng, Jiahan Wang
Faculty: Brad Engelsman
Semester: Spring 2019
Student(s): Phillip He, Leng Cheng, Jiahan Wang
Faculty: Brad Engelsman
Semester: Spring 2019
Student(s): Devorah Schwartz
Faculty: Farzana Ghandi
Semester: Spring 2019
Student(s): Brianna Lopez, Jonathan Kennelley
Faculty: Sergio Elizondo
Semester: Spring 2019
Student(s): Brianna Lopez, Jonathan Kennelley
Faculty: Sergio Elizondo
Semester: Spring 2019
Student(s): Brianna Lopez, Jonathan Kennelley
Faculty: Sergio Elizondo
Semester: Spring 2019
Student(s): Delando Desouza and Isaiah Miller
Faculty: Brad Engelsman
Semester: Spring 2019
Student(s): Delando Desouza and Isaiah Miller
Faculty: Brad Engelsman
Semester: Spring 2019
Student(s): Delando Desouza and Isaiah Miller
Faculty: Brad Engelsman
Semester: Spring 2019
Student(s): Delando Desouza and Isaiah Miller
Faculty: Brad Engelsman
Semester: Spring 2019
Student(s): Michael Carrotta, Ari Begun
Faculty: Sergio Elizondo
Semester: Spring 2019
Student(s): Michael Carrotta, Ari Begun
Faculty: Sergio Elizondo
Semester: Spring 2019
Student(s): Michael Carrotta, Ari Begun
Faculty: Sergio Elizondo
Semester: Spring 2019
Student(s): Michael Carrotta, Ari Begun
Faculty: Sergio Elizondo
Semester: Spring 2019
Student(s): Jonathan Dis, Peter Leonardis, Evan Scheer
Faculty: Brad Engelsman
Semester: Spring 2019
Student(s): Jonathan Dis, Peter Leonardis, Evan Scheer
Faculty: Brad Engelsman
Semester: Spring 2019
Student(s): Samantha Arena, Elena Colina
Faculty: Sergio Elizondo
Semester: Spring 2019
Student(s): Samantha Arena, Elena Colina
Faculty: Sergio Elizondo
Semester: Spring 2019
Student(s): Silvio Tellez, Marko Despot
Faculty: Sergio Elizondo
Semester: Spring 2019
Student(s): Silvio Tellez, Marko Despot
Faculty: Sergio Elizondo
Semester: Spring 2019
Student(s): Silvio Tellez, Marko Despot
Faculty: Sergio Elizondo
Semester: Spring 2019
Student(s): Simon-Peter Omooba, Yemi Oyewole
Faculty: Sergio Elizondo
Semester: Spring 2019
Student(s): Simon-Peter Omooba, Yemi Oyewole
Faculty: Sergio Elizondo
Semester: Spring 2019
Student(s): Simon-Peter Omooba, Yemi Oyewole
Faculty: Sergio Elizondo
Semester: Spring 2019
Student(s): Simon-Peter Omooba, Yemi Oyewole
Faculty: Sergio Elizondo
Semester: Spring 2019
Student(s): Qiui Chen
Faculty: Janet Fink
Semester: Spring 2019
Student(s): Qiui Chen
Faculty: Janet Fink
Semester: Spring 2019
Student(s): Matthew Garcia, Jairo Aguilar
Faculty: Janet Fink
Semester: Spring 2019
Student(s): Matthew Garcia, Jairo Aguilar
Faculty: Janet Fink
Semester: Spring 2019
Student(s): Matthew Garcia, Jairo Aguilar
Faculty: Janet Fink
Semester: Spring 2019
Student(s): Matthew Garcia, Jairo Aguilar
Faculty: Janet Fink
Semester: Spring 2019
Student(s): Matthew Garcia, Jairo Aguilar
Faculty: Janet Fink
Semester: Spring 2019
Students: Sean Brown and Antonio Gabriele
Semester: Fall 2017
Students: Sean Brown and Antonio Gabriele
Semester: Fall 2017
Students: Sean Brown and Antonio Gabriele
Semester: Fall 2017
Students: Sean Brown and Antonio Gabriele
Semester: Fall 2017
Students: Sean Brown and Antonio Gabriele
Semester: Fall 2017
Students: Zeynep Kurt and Farzana Ghandi
Semester: Fall 2017
Students: Zeynep Kurt and Farzana Ghandi
Semester: Fall 2017
Students: Zeynep Kurt and Farzana Ghandi
Semester: Fall 2017
Students: Zeynep Kurt and Farzana Ghandi
Semester: Fall 2017
Student: Tyler Okorn
Semester: Spring 2017
Student: Tyler Okorn
Semester: Spring 2017
Student: Matthew Busch
Semester: Spring 2017
Student: Matthew Busch
Semester: Spring 2017
Student: Matthew Busch
Semester: Spring 2017
Student: Matthew Busch
Semester: Spring 2017
Student: Matthew Busch
Semester: Spring 2017
Student: Cesar Ortiz
Semester: Spring 2017
Student: Cesar Ortiz
Semester: Spring 2017
Student: Cesar Ortiz
Semester: Spring 2017
Student: Cesar Ortiz
Semester: Spring 2017
Student: Cesar Ortiz
Semester: Spring 2017
Student: Cesar Ortiz
Semester: Spring 2017
Student: Cesar Ortiz
Semester: Spring 2017
Student: Kenneth Feemantle
Semester: Spring 2017
Student: Kenneth Feemantle
Semester: Spring 2017
Student: Kenneth Feemantle
Semester: Spring 2017
Student: Kenneth Feemantle
Semester: Spring 2017
Student: Kenneth Feemantle
Semester: Spring 2017
Student: Kenneth Feemantle
Semester: Spring 2017