Architecural Design IV Gallery
The goal of third year design studios is to consider solutions that respond to and resolve a number of issues within one project, an integration of solutions within a whole. Design IV is devoted to the dwelling or the “private realm” of our social “way of life”. Housing is a topic that has profound impact on every aspect of our personal and social lives, and it involves issues of security and health through repetition and assemblage of functional spaces. The private domain is critical to the definition of personal freedom and its organization provides the setting for and shapes domestic rituals. Housing is also the fabric of our cities and suburbs, giving them character. The projects elaborated in this studio will constitute a search for alternatives to the suburban house that uses too much land, the tenement that fails to provide open space, and the tower that can compromises the street texture of neighborhoods. Students are asked to meet the design challenges with an increased degree of spatial development and integrated design strategies.
Student: Jamie Lopez
Faculty: Matthias Altwicker
Semester: Spring 2020
Student: Jamie Lopez
Faculty: Matthias Altwicker
Semester: Spring 2020
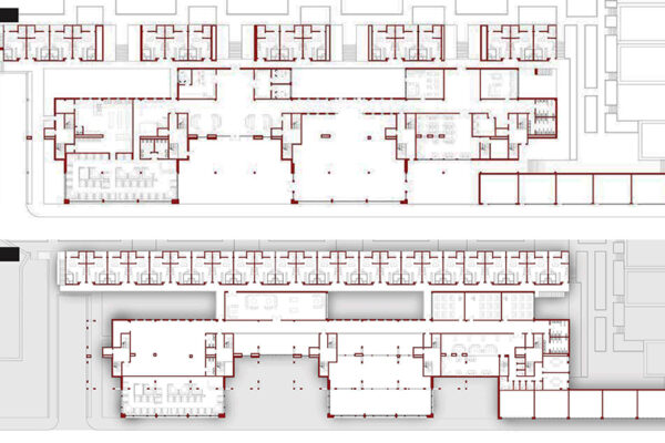
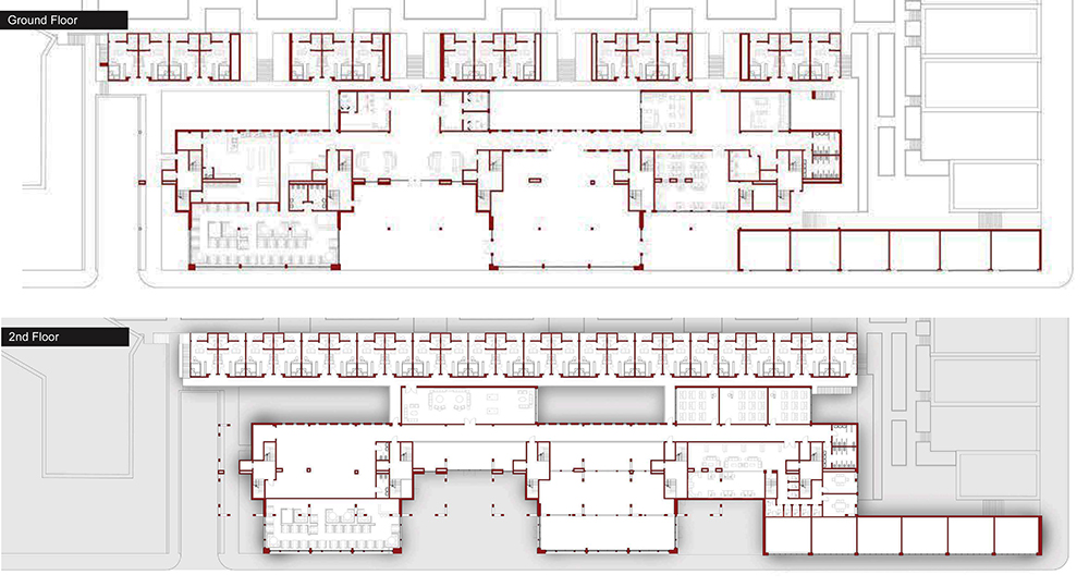
Student: Matt Kennedy
Faculty: Matthias Altwicker
Semester: Spring 2020
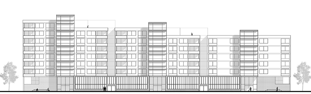
Student: Matt Kennedy
Faculty: Matthias Altwicker
Semester: Spring 2020
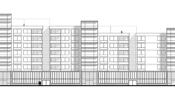
Student: Matt Kennedy
Faculty: Matthias Altwicker
Semester: Spring 2020
Student: Yuchen Li
Faculty: Frances Campani
Semester: Spring 2020
Student: Yuchen Li
Faculty: Frances Campani
Semester: Spring 2020
Student: Yuchen Li
Faculty: Frances Campani
Semester: Spring 2020
Student: Yuchen Li
Faculty: Frances Campani
Semester: Spring 2020
Student: Briana Pereira
Faculty: Tobias Holler
Semester: Spring 2020
Student: Briana Pereira
Faculty: Tobias Holler
Semester: Spring 2020
Student: Katelyn Trainor
Faculty: Matthias Altwicker
Semester: Spring 2020
Student: Katelyn Trainor
Faculty: Matthias Altwicker
Semester: Spring 2020
Student: Ariel Lorenzi
Professor: Matthias Altwicker
Semester: Spring 2019
Student: Ariel Lorenzi
Professor: Matthias Altwicker
Semester: Spring 2019
Student: Ariel Lorenzi
Professor: Matthias Altwicker
Semester: Spring 2019
Student: Ariel Lorenzi
Professor: Matthias Altwicker
Semester: Spring 2019
Student: Gjuljana Mulosmanaj
Professor: Michael Schwarting
Semester: Spring 2019
Student: Gjuljana Mulosmanaj
Professor: Michael Schwarting
Semester: Spring 2019
Student: Gjuljana Mulosmanaj
Professor: Michael Schwarting
Semester: Spring 2019
Student: Hajdi Sinani
Professor: Jan Greben
Semester: Spring 2019
Student: Hajdi Sinani
Professor: Jan Greben
Semester: Spring 2019
Student: Hajdi Sinani
Professor: Jan Greben
Semester: Spring 2019
Student: Hajdi Sinani
Professor: Jan Greben
Semester: Spring 2019
Student: Hajdi Sinani
Professor: Jan Greben
Semester: Spring 2019
Student: Ler Simoneau
Professor: Michael Schwarting
Semester: Spring 2019
Student: Ler Simoneau
Professor: Michael Schwarting
Semester: Spring 2019
Student: Ler Simoneau
Professor: Michael Schwarting
Semester: Spring 2019
Student: Ler Simoneau
Professor: Michael Schwarting
Semester: Spring 2019
Student: Ler Simoneau
Professor: Michael Schwarting
Semester: Spring 2019
Student: Marilyn Corea
Professor: Jan Greben
Semester: Spring 2019
Student: Marilyn Corea
Professor: Jan Greben
Semester: Spring 2019
Student: Nicholas Spano
Professor: Jan Greben
Semester: Spring 2019
Student: Nicholas Spano
Professor: Jan Greben
Semester: Spring 2019
Student: Nicholas Spano
Professor: Jan Greben
Semester: Spring 2019
Student: Stuart Jacome
Professor: Matthias Altwicker
Semester: Spring 2019
Student: Stuart Jacome
Professor: Matthias Altwicker
Semester: Spring 2019
Nafie Rob, Neff Diane, Spring 2018
Nafie Rob, Neff Diane, Spring 2018
Nafie Rob, Neff Diane, Spring 2018
Sather Benjamin, Cumella Maria, Spring 2018
Sather Benjamin, Cumella Maria, Spring 2018
Sather Benjamin, Cumella Maria, Spring 2018
Sather Benjamin, Cumella Maria, Spring 2018
Sather Benjamin, Cumella Maria, Spring 2018
Sather Benjamin, Cumella Maria, Spring 2018
Sather Benjamin, Cumella Maria, Spring 2018
Schwartz Devorah, Greben Jan, Spring 2018
Schwartz Devorah, Greben Jan, Spring 2018
Schwartz Devorah, Greben Jan, Spring 2018
Schwartz Devorah, Greben Jan, Spring 2018
Student: David Livramento
Semester: Spring 2016
Student: David Livramento
Semester: Spring 2016
Student: David Livramento
Semester: Spring 2016
Student: David Livramento
Semester: Spring 2016
Student: David Livramento
Semester: Spring 2016
Student: David Livramento
Semester: Spring 2016
Student: David Livramento
Semester: Spring 2016
Student: David Livramento
Semester: Spring 2016
Student: David Livramento
Semester: Spring 2016
Student: Jemie Cardinale
Semester: Spring 2016
Student: Jemie Cardinale
Semester: Spring 2016
Student: Jemie Cardinale
Semester: Spring 2016
Student: Jemie Cardinale
Semester: Spring 2016
Student: Jemie Cardinale
Semester: Spring 2016
Student: Max Tricot
Semester: Spring 2016
Student: Max Tricot
Semester: Spring 2016
Student: Max Tricot
Semester: Spring 2016
Student: Max Tricot
Semester: Spring 2016
Student: Max Tricot
Semester: Spring 2016
Student: Max Tricot
Semester: Spring 2016
Student: Minh Nguyen
Semester: Spring 2016
Student: Minh Nguyen
Semester: Spring 2016
Student: Minh Nguyen
Semester: Spring 2016
Student: Minh Nguyen
Semester: Spring 2016
Student: Minh Nguyen
Semester: Spring 2016
Student: Minh Nguyen
Semester: Spring 2016
Student: Minh Nguyen
Semester: Spring 2016
Student: Minh Nguyen
Semester: Spring 2016
Student: Minh Nguyen
Semester: Spring 2016