Christian Pongrantz
Program Gallery: M.S in Health & Design
Design Challenge
Covid-19
Safe use vs. ease of use, and explore behavior change everywhere.
Virtual Reality
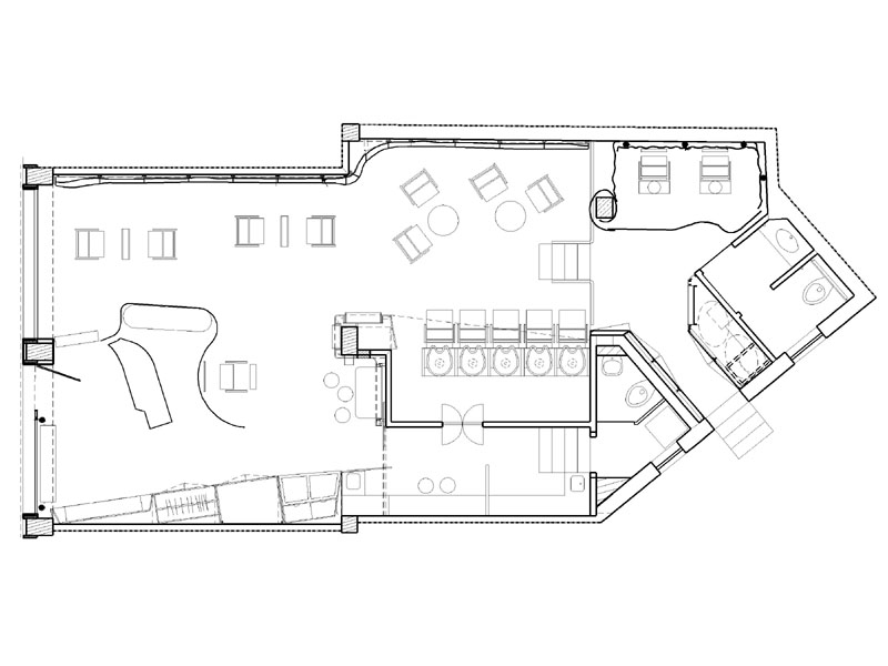
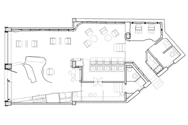
Hair Salon in Verona, Italy
Floor Plan
The CP Group new salon for hair and wellness features a unique space communicating an atmosphere based on emotional experiences joined with the philosophy of AVEDA products. The interiors are combining comfort and functional efficiency to the performance of new materials and forms brought about by innovative techniques of design and manufacturing. The finishes of smooth surfaces address more the tactile aspects of perception, and the presence of particular sounds, colours, and aromas transfers a sense of tranquillity and relaxation to the customer.
Hair Salon in Verona, Italy
Front Facade and Entry
The CP Group new salon for hair and wellness features a unique space communicating an atmosphere based on emotional experiences joined with the philosophy of AVEDA products. The interiors are combining comfort and functional efficiency to the performance of new materials and forms brought about by innovative techniques of design and manufacturing. The finishes of smooth surfaces address more the tactile aspects of perception, and the presence of particular sounds, colours, and aromas transfers a sense of tranquillity and relaxation to the customer.
Hair Salon in Verona, Italy
Corian Separee Fabrication
The CP Group new salon for hair and wellness features a unique space communicating an atmosphere based on emotional experiences joined with the philosophy of AVEDA products. The interiors are combining comfort and functional efficiency to the performance of new materials and forms brought about by innovative techniques of design and manufacturing. The finishes of smooth surfaces address more the tactile aspects of perception, and the presence of particular sounds, colours, and aromas transfers a sense of tranquillity and relaxation to the customer.
Hair Salon in Verona, Italy
Customer Reception
The CP Group new salon for hair and wellness features a unique space communicating an atmosphere based on emotional experiences joined with the philosophy of AVEDA products. The interiors are combining comfort and functional efficiency to the performance of new materials and forms brought about by innovative techniques of design and manufacturing. The finishes of smooth surfaces address more the tactile aspects of perception, and the presence of particular sounds, colours, and aromas transfers a sense of tranquillity and relaxation to the customer.
Hair Salon in Verona, Italy
Counseling Space
The CP Group new salon for hair and wellness features a unique space communicating an atmosphere based on emotional experiences joined with the philosophy of AVEDA products. The interiors are combining comfort and functional efficiency to the performance of new materials and forms brought about by innovative techniques of design and manufacturing. The finishes of smooth surfaces address more the tactile aspects of perception, and the presence of particular sounds, colours, and aromas transfers a sense of tranquillity and relaxation to the customer.
Hair Salon in Verona, Italy
Individual Stations
The CP Group new salon for hair and wellness features a unique space communicating an atmosphere based on emotional experiences joined with the philosophy of AVEDA products. The interiors are combining comfort and functional efficiency to the performance of new materials and forms brought about by innovative techniques of design and manufacturing. The finishes of smooth surfaces address more the tactile aspects of perception, and the presence of particular sounds, colours, and aromas transfers a sense of tranquillity and relaxation to the customer.
Hair Salon in Verona, Italy
Colour Zone
The CP Group new salon for hair and wellness features a unique space communicating an atmosphere based on emotional experiences joined with the philosophy of AVEDA products. The interiors are combining comfort and functional efficiency to the performance of new materials and forms brought about by innovative techniques of design and manufacturing. The finishes of smooth surfaces address more the tactile aspects of perception, and the presence of particular sounds, colours, and aromas transfers a sense of tranquillity and relaxation to the customer.
Hair Salon in Verona, Italy
Mirror Stand Design in Formed Metal
The CP Group new salon for hair and wellness features a unique space communicating an atmosphere based on emotional experiences joined with the philosophy of AVEDA products. The interiors are combining comfort and functional efficiency to the performance of new materials and forms brought about by innovative techniques of design and manufacturing. The finishes of smooth surfaces address more the tactile aspects of perception, and the presence of particular sounds, colours, and aromas transfers a sense of tranquillity and relaxation to the customer.
Hair Salon in Verona, Italy
Wellness Zone
The CP Group new salon for hair and wellness features a unique space communicating an atmosphere based on emotional experiences joined with the philosophy of AVEDA products. The interiors are combining comfort and functional efficiency to the performance of new materials and forms brought about by innovative techniques of design and manufacturing. The finishes of smooth surfaces address more the tactile aspects of perception, and the presence of particular sounds, colours, and aromas transfers a sense of tranquillity and relaxation to the customer.
Hair Salon in Verona, Italy
Wood Boiserie Fabrication
The CP Group new salon for hair and wellness features a unique space communicating an atmosphere based on emotional experiences joined with the philosophy of AVEDA products. The interiors are combining comfort and functional efficiency to the performance of new materials and forms brought about by innovative techniques of design and manufacturing. The finishes of smooth surfaces address more the tactile aspects of perception, and the presence of particular sounds, colours, and aromas transfers a sense of tranquillity and relaxation to the customer.
Hair Salon in Verona, Italy
Boiserie Design
The CP Group new salon for hair and wellness features a unique space communicating an atmosphere based on emotional experiences joined with the philosophy of AVEDA products. The interiors are combining comfort and functional efficiency to the performance of new materials and forms brought about by innovative techniques of design and manufacturing. The finishes of smooth surfaces address more the tactile aspects of perception, and the presence of particular sounds, colours, and aromas transfers a sense of tranquillity and relaxation to the customer.
Hair Salon in Verona, Italy
Boiserie Between Cutting and Colouring Zones
The CP Group new salon for hair and wellness features a unique space communicating an atmosphere based on emotional experiences joined with the philosophy of AVEDA products. The interiors are combining comfort and functional efficiency to the performance of new materials and forms brought about by innovative techniques of design and manufacturing. The finishes of smooth surfaces address more the tactile aspects of perception, and the presence of particular sounds, colours, and aromas transfers a sense of tranquillity and relaxation to the customer.
Hair Salon in Verona, Italy
Corian CNC Milled
The CP Group new salon for hair and wellness features a unique space communicating an atmosphere based on emotional experiences joined with the philosophy of AVEDA products. The interiors are combining comfort and functional efficiency to the performance of new materials and forms brought about by innovative techniques of design and manufacturing. The finishes of smooth surfaces address more the tactile aspects of perception, and the presence of particular sounds, colours, and aromas transfers a sense of tranquillity and relaxation to the customer.
Hair Salon in Verona, Italy
Pendant Lights
The CP Group new salon for hair and wellness features a unique space communicating an atmosphere based on emotional experiences joined with the philosophy of AVEDA products. The interiors are combining comfort and functional efficiency to the performance of new materials and forms brought about by innovative techniques of design and manufacturing. The finishes of smooth surfaces address more the tactile aspects of perception, and the presence of particular sounds, colours, and aromas transfers a sense of tranquillity and relaxation to the customer.
Hair Salon in Verona, Italy
Floor Lamps
The CP Group new salon for hair and wellness features a unique space communicating an atmosphere based on emotional experiences joined with the philosophy of AVEDA products. The interiors are combining comfort and functional efficiency to the performance of new materials and forms brought about by innovative techniques of design and manufacturing. The finishes of smooth surfaces address more the tactile aspects of perception, and the presence of particular sounds, colours, and aromas transfers a sense of tranquillity and relaxation to the customer.
Hair Salon in Verona, Italy
Wall Furniture Design
The CP Group new salon for hair and wellness features a unique space communicating an atmosphere based on emotional experiences joined with the philosophy of AVEDA products. The interiors are combining comfort and functional efficiency to the performance of new materials and forms brought about by innovative techniques of design and manufacturing. The finishes of smooth surfaces address more the tactile aspects of perception, and the presence of particular sounds, colours, and aromas transfers a sense of tranquillity and relaxation to the customer.
Hair Salon in Verona, Italy
Bar and Waiting Zone
The CP Group new salon for hair and wellness features a unique space communicating an atmosphere based on emotional experiences joined with the philosophy of AVEDA products. The interiors are combining comfort and functional efficiency to the performance of new materials and forms brought about by innovative techniques of design and manufacturing. The finishes of smooth surfaces address more the tactile aspects of perception, and the presence of particular sounds, colours, and aromas transfers a sense of tranquillity and relaxation to the customer.
Hair Salon in Verona, Italy
Technical Lighting
The CP Group new salon for hair and wellness features a unique space communicating an atmosphere based on emotional experiences joined with the philosophy of AVEDA products. The interiors are combining comfort and functional efficiency to the performance of new materials and forms brought about by innovative techniques of design and manufacturing. The finishes of smooth surfaces address more the tactile aspects of perception, and the presence of particular sounds, colours, and aromas transfers a sense of tranquillity and relaxation to the customer.
Hair Salon in Verona, Italy
Furniture, Modul Metal Fabrication
The CP Group new salon for hair and wellness features a unique space communicating an atmosphere based on emotional experiences joined with the philosophy of AVEDA products. The interiors are combining comfort and functional efficiency to the performance of new materials and forms brought about by innovative techniques of design and manufacturing. The finishes of smooth surfaces address more the tactile aspects of perception, and the presence of particular sounds, colours, and aromas transfers a sense of tranquillity and relaxation to the customer.
Hair Salon in Verona, Italy
Furniture, Modul Joints
The CP Group new salon for hair and wellness features a unique space communicating an atmosphere based on emotional experiences joined with the philosophy of AVEDA products. The interiors are combining comfort and functional efficiency to the performance of new materials and forms brought about by innovative techniques of design and manufacturing. The finishes of smooth surfaces address more the tactile aspects of perception, and the presence of particular sounds, colours, and aromas transfers a sense of tranquillity and relaxation to the customer.
Hair Salon in Verona, Italy
Furniture, Long Modul Metal Fabrication
The CP Group new salon for hair and wellness features a unique space communicating an atmosphere based on emotional experiences joined with the philosophy of AVEDA products. The interiors are combining comfort and functional efficiency to the performance of new materials and forms brought about by innovative techniques of design and manufacturing. The finishes of smooth surfaces address more the tactile aspects of perception, and the presence of particular sounds, colours, and aromas transfers a sense of tranquillity and relaxation to the customer.
Hair Salon in Verona, Italy
Furniture, Moduls In Metal
The CP Group new salon for hair and wellness features a unique space communicating an atmosphere based on emotional experiences joined with the philosophy of AVEDA products. The interiors are combining comfort and functional efficiency to the performance of new materials and forms brought about by innovative techniques of design and manufacturing. The finishes of smooth surfaces address more the tactile aspects of perception, and the presence of particular sounds, colours, and aromas transfers a sense of tranquillity and relaxation to the customer.
Hair Salon in Verona, Italy
Furniture Design, Open Shelve Stand
The CP Group new salon for hair and wellness features a unique space communicating an atmosphere based on emotional experiences joined with the philosophy of AVEDA products. The interiors are combining comfort and functional efficiency to the performance of new materials and forms brought about by innovative techniques of design and manufacturing. The finishes of smooth surfaces address more the tactile aspects of perception, and the presence of particular sounds, colours, and aromas transfers a sense of tranquillity and relaxation to the customer.
Hair Salon in Verona, Italy
Furniture Design Product Placement
The CP Group new salon for hair and wellness features a unique space communicating an atmosphere based on emotional experiences joined with the philosophy of AVEDA products. The interiors are combining comfort and functional efficiency to the performance of new materials and forms brought about by innovative techniques of design and manufacturing. The finishes of smooth surfaces address more the tactile aspects of perception, and the presence of particular sounds, colours, and aromas transfers a sense of tranquillity and relaxation to the customer.
Hair Salon in Verona, Italy
Furniture Design in Metal as Suspended Shelving Unit
The CP Group new salon for hair and wellness features a unique space communicating an atmosphere based on emotional experiences joined with the philosophy of AVEDA products. The interiors are combining comfort and functional efficiency to the performance of new materials and forms brought about by innovative techniques of design and manufacturing. The finishes of smooth surfaces address more the tactile aspects of perception, and the presence of particular sounds, colours, and aromas transfers a sense of tranquillity and relaxation to the customer.
Hair Salon in Verona, Italy
Floor Materials and Transition Between Different Zones
The CP Group new salon for hair and wellness features a unique space communicating an atmosphere based on emotional experiences joined with the philosophy of AVEDA products. The interiors are combining comfort and functional efficiency to the performance of new materials and forms brought about by innovative techniques of design and manufacturing. The finishes of smooth surfaces address more the tactile aspects of perception, and the presence of particular sounds, colours, and aromas transfers a sense of tranquillity and relaxation to the customer.
Hair Salon in Verona, Italy
Floor Materials and Transition at Entrance
The CP Group new salon for hair and wellness features a unique space communicating an atmosphere based on emotional experiences joined with the philosophy of AVEDA products. The interiors are combining comfort and functional efficiency to the performance of new materials and forms brought about by innovative techniques of design and manufacturing. The finishes of smooth surfaces address more the tactile aspects of perception, and the presence of particular sounds, colours, and aromas transfers a sense of tranquillity and relaxation to the customer.
Hair Salon in Verona, Italy
Furniture Design, Bathroom Sink in Corian, Room LED RGB Lighting Moods
The CP Group new salon for hair and wellness features a unique space communicating an atmosphere based on emotional experiences joined with the philosophy of AVEDA products. The interiors are combining comfort and functional efficiency to the performance of new materials and forms brought about by innovative techniques of design and manufacturing. The finishes of smooth surfaces address more the tactile aspects of perception, and the presence of particular sounds, colours, and aromas transfers a sense of tranquillity and relaxation to the customer.