Arch 402 (Spring 2018) Gallery
The program of this building in Caguas, Puerto Rico included a community indoor market that could transform into an evacuation center with first aid medical response during storm scenarios. Saw New (student), Associate Professor Farzana Gandhi (faculty); ARCH 402, B.Arch Program, Spring 2018
The program of this building in Caguas, Puerto Rico included a community indoor market that could transform into an evacuation center with first aid medical response during storm scenarios. Saw New (student), Associate Professor Farzana Gandhi (faculty); ARCH 402, B.Arch Program, Spring 2018
The program of this building in Caguas, Puerto Rico included a community indoor market that could transform into an evacuation center with first aid medical response during storm scenarios. Wenchi Wu (student), Associate Professor Farzana Gandhi (faculty); ARCH 402, B.Arch Program, Spring 2018
The program of this building in Caguas, Puerto Rico included a community indoor market that could transform into an evacuation center with first aid medical response during storm scenarios. Wenchi Wu (student), Associate Professor Farzana Gandhi (faculty); ARCH 402, B.Arch Program, Spring 2018
The program of this building in Caguas, Puerto Rico included a community indoor market that could transform into an evacuation center with first aid medical response during storm scenarios. Wenchi Wu (student), Associate Professor Farzana Gandhi (faculty); ARCH 402, B.Arch Program, Spring 2018
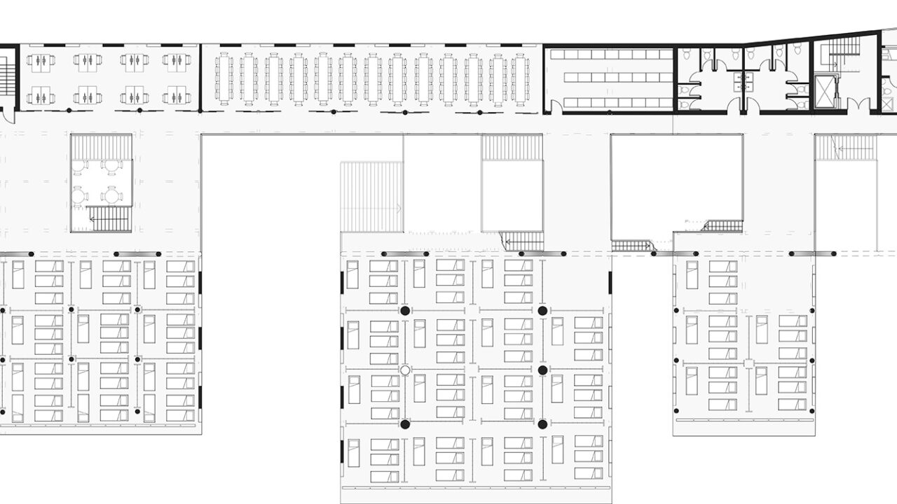
The program of this building in Caguas, Puerto Rico included a community indoor market that could transform into an evacuation center with first aid medical response during storm scenarios. Zeynep Kurt (student), Associate Professor Farzana Gandhi (faculty); ARCH 402, B.Arch Program, Spring 2018
The program of this building in Caguas, Puerto Rico included a community indoor market that could transform into an evacuation center with first aid medical response during storm scenarios. Zeynep Kurt (student), Associate Professor Farzana Gandhi (faculty); ARCH 402, B.Arch Program, Spring 2018
The program of this building in Caguas, Puerto Rico included a community indoor market that could transform into an evacuation center with first aid medical response during storm scenarios. Zeynep Kurt (student), Associate Professor Farzana Gandhi (faculty); ARCH 402, B.Arch Program, Spring 2018