Beyhan Karahan Gallery
Albert R Mann Library. 3 Phases and Conceptual Diagram. Cornell University, Ithaca, NY.
Albert R Mann Library. Cornell University, Ithaca, NY.
Albert R Mann Library. Cornell University, Ithaca, NY. Photo by Seong Kwan.
Albert R Mann Library. Cornell University, Ithaca, NY.
Albert R Mann Library. Hortorium Labs. Cornell University, Ithaca, NY. Photo by Seong Kwan.
The Oz Loft. SoHo, NYC.
The Oz Loft. SoHo, NYC.
The Oz Loft. Seasonal Daylight Diagrams. SoHo, NYC.
The Oz Loft. Conceptual Diagram.SoHo, NYC.
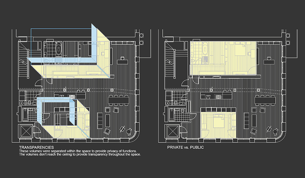
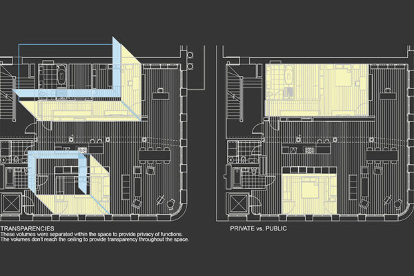
The Oz Loft. Transparency vs. Privacy. SoHo, NYC.
BKAA Loft Office. SoHo, NYC.
88 Jane St. NYC.
Morgan-Cary Residence. Chelsea, NYC.
54 Greene St. Historic Facade Restoration. SoHo, NYC.
381 Broome St. Mixed Use Building. Little Italy, NYC.
Rockaway Combined Fire and EMS Station. Far Rockaway, NY.
Rockaway Combined Fire and EMS Station. Far Rockaway, NY.
Rockaway Combined Fire and EMS Station. Far Rockaway, NY.
Engine Company 239 Facade. Brooklyn, NY.
Engine Company 239. Brooklyn, NY.
200 East 69th St. NYC.
200 East 69th St. NYC.
200 East 69th St. NYC.
Schwartzman Loft. NYC.
Schwartzman Loft. Calibrating Natural Light and Degrees of Privacy. NYC.
Gowanus Waterworks Community Center
Gowanus Waterworks Community Center
New Jersey WTC Memorial
Guggenheim Museum Helsinki
Guggenheim Museum Helsinki
Emergency Medical Stations for New York City. Brooklyn, NY.
Emergency Medical Stations for New York City. Brooklyn, NY.
Emergency Medical Stations for New York City. Springfield Gardens, NY.
Ridgewood Library. Queens, NY.
Ridgewood Library Youth Center. Queens, NY.